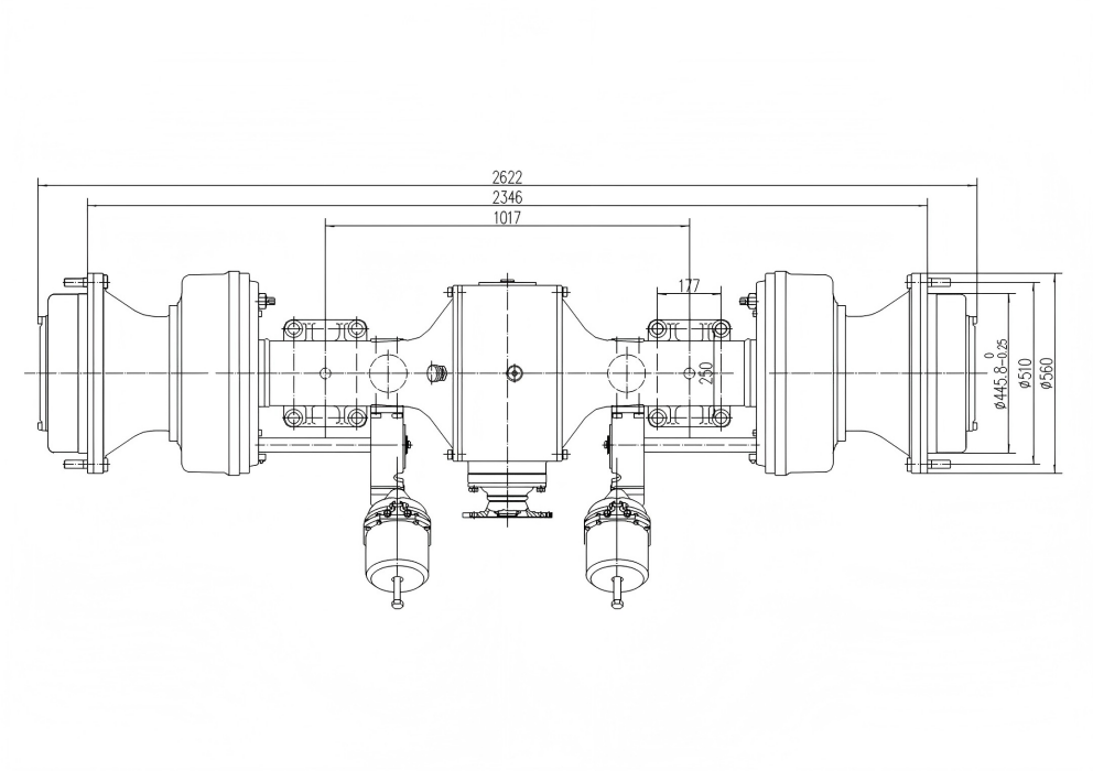
Tractor Drive Bridge
1.This bridge uses a two-stage gear reducer.
2.The main transmission uses Glyson hypoid bevel gears, ensuring high efficiency and low noise level.
3.The wheel reducer is designed according to the NGW planetary scheme, compact and rational.
4.The bridge shell is manufactured using a solid casting method from molten steel, ensuring high rigidity and large load-bearing capacity.
5.The braking system uses disc brakes with calipers, providing high braking torque, smoothness, and reliability.
6.The differential is equipped with an anti-slip system No-spin, ensuring 100% protection against slipping on dirty roads.
7. Suitable for tractors with 400 horsepower, supplied to Russia in bulk shipments.
MAIN CHARACTERISTICS:
The tractor's drive axle is equipped with a two-stage gear transmission.The primary reduction stage uses a Gleason type bevel gear, while the secondary stage of the planetary gearbox is based on an NGW type planetary mechanism.The integrated power transmission includes a self-locking No-Spin differential for improved traction control, mounted in a cast steel axle housing ensuring structural integrity.The braking system is equipped with caliper disc brakes, guaranteeing reliable braking and safe operation.
MAIN TECHNICAL PARAMETERS
Overall overall gear ratio |
17.66 |
Maximum input torque |
9500N.m |
Load on one bridge |
28000Kg |
Brake system oil pressure |
11MPa |
Braking torque of one caliper |
13000N.m |
Requirements for oil for the drive axle (API classification) |
GL-5: 85W/90 gear oil (use above -12°C) |
Requirements for brake fluid for calipers |
DOT3 (USA) or 719 synthetic brake fluid, do not mix! |



