Rear swing axle of a grader
1. Support customized OEM production, which can flexibly meet the structure and performance requirements of different equipment manufacturers.
2. Manufactured on a dedicated production line, the delivery cycle is short and the response speed is fast.
3.The structure design takes full account of the convenience of maintenance, making daily maintenance and component replacement more convenient.
4.After many years of market verification, the product performance is stable and reliable, and the failure rate is low.
5. Suitable for installation on the rear axle of a grader with a capacity of 160-190 horsepower.
Introduction:
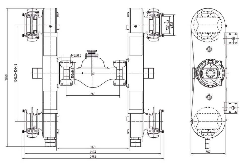
The PY180ZH grader's rear axle, with its integral slewing design, offers significant advantages. It utilizes a monolithic axle housing, offering not only excellent load-bearing capacity but also a simple structure and superior stability. The universal main gearbox assembly can be independently removed, greatly simplifying procurement and maintenance. A new four-wheel planetary gear reduction system optimizes gear load distribution and significantly improves transmission efficiency. The integral independent wheelbase is easy to assemble and maintain. The hydraulic caliper disc brake system provides fast, reliable braking and requires little maintenance. Suitable for 160-190 hp motor graders, it offers both performance and easy maintenance, ideally meeting construction requirements, making it a reliable choice!
Main technical parameters:
Overall overall gear ratio |
17.874 |
Maximum input torque |
6000N.m |
Maximum input speed |
3100r/min |
Nominal bridge load |
12000 kg |
Brake system oil pressure |
11 MPa |
Braking torque of one caliper |
13050N.m |
Brake caliper working volume |
8.8 ml |
Drive axle oil requirements (API classification) |
GL-5: transmission oil 85W/90 (use at temperatures above -12°C) GL-5: transmission oil 80W/90 (use at temperatures above -26°C) |
Brake Caliper Fluid Requirements |
Hydraulic oil L-HL46 In cold areas: anti-wear, low-freeze hydraulic oil L-HV46 |
Product Features:
One-piece cast steel bridge body for secure carrying:
The grader's drive axle is constructed from a single-piece cast steel body, boasting a streamlined design and superior rigidity. The axle body's cross-section has been optimized to ensure low weight while maintaining excellent resistance to bending and torsion. This not only meets the transportation requirements of small and medium-sized pneumatic graders but also avoids excessive weight gain. The main load-bearing components are designed with localized reinforcement, allowing them to easily withstand the challenging loads of grader operation. Even on uneven roads and under intensive bulldozing conditions, the axle frame remains stable and reliable, providing a solid support structure for the entire machine.
Universal main gearbox that can be dismantled and repaired by yourself:
The main gearbox has a universal design that allows for high versatility in using components from various models on a single platform, as well as easy spare parts procurement, effectively reducing inventory costs for the user. It's also worth noting that the main gearbox assembly can be disassembled without disassembling the discs and balancer, significantly reducing downtime during maintenance. This design fully meets the key end-user requirements for ease of maintenance, especially in environments with limited maintenance resources.
The new type of four-wheel planetary retarder has a more reasonable load distribution:
The planetary deceleration mechanism is a four-wheel design. Compared to a conventional three-wheel design, contact stress in the gear is reduced by 20%, and load distribution is more uniform, fundamentally addressing the problem of premature wear caused by partial loads on the planetary gear under severe operating conditions. The planetary gears, disc gears, and ring gears are made of high-quality alloy steel, carburized and hardened, ensuring stable engagement, low noise levels, and a long service life, meeting the stringent requirements of frequent reversing and intensive motor grader operations.
Independent side of the wheel, easy assembly and maintenance:
The wheel-side gearbox features an integrated modular design that can be directly connected to the balancer unit during assembly without the need for on-site gear clearance adjustment, significantly improving assembly efficiency for OEMs. During maintenance, the wheel-side gearbox can be completely disassembled, eliminating the need to disassemble the balancer unit to replace gears or bearings, simplifying and speeding up on-site maintenance.
Hydraulic clamping disc brakes, fast braking and easy maintenance:
Hydraulic disc brakes are developed using advanced technology. Compared to wet brakes, their design is simpler, cost-effective, braking response is quick, and braking torque is stable and reliable. The external design makes friction plate wear immediately apparent. There's no need to disassemble the wheel rim when replacing it. This can be accomplished by loosening the clamp housing, significantly improving maintenance ease. The brake discs and friction linings are made of high-quality, wear-resistant materials with excellent heat dissipation properties and high resistance to temperature fluctuations under frequent braking, fully meeting the operational needs of small and medium-power graders.
Special grader axle manufacturing system
To ensure the quality and efficiency of mass supply of 160-190 horsepower grader drive axles, the company has established a dedicated production line for small and medium-sized drive axles. The production line adopts a flexible mixed-production mode, which can accommodate the simultaneous production of grader drive axles of different specifications. The replacement time is precisely controlled within 20 minutes, effectively shortening the order processing cycle and meeting the needs of global customers for standardized purchasing and service. Emergency inventory replenishment is also provided. The internal functional division of the production line is clearly defined: the main gearbox assembly is carried out in strict accordance with the technological process to ensure the assembly accuracy and engagement quality of the main gearbox for each axle of the 190 horsepower grader; a modular pre-assembly line is used on the wheel side. Pre-assembly and testing of the wheel-side unit is performed, which not only reduces the load on the assembly line but also improves the overall efficiency of the production facility. All export products are packaged in moisture-resistant and shock-resistant reinforced packaging to ensure the safety of long-distance transportation, and they are ready for installation and use once they reach customers.
Special quality control
Based on the overall quality control system and taking into account the specific application characteristics of the grader drive axle, we have developed a special testing process for inspection at all levels to ensure product reliability. Before leaving the factory, each main gearbox assembly must be tested for engagement marks on a load test bench, and the location and area of the contact points are strictly checked to ensure 100% compliance with design standards.
The wheel-side assembly must undergo noise testing under no-load conditions on a dedicated test rig to verify gear mesh stability. After the entire axle is assembled, the axle housing, wheel-side assembly, and brake system are individually tested for leaks. Pressure values exceeding the industry standard for pressure testing completely eliminate hidden risks of oil and air leaks. Furthermore, we also conduct sampling and re-testing of the material hardness and effective hardening layer depth of key components, and regularly conduct salt spray anti-corrosion testing of finished products to ensure their durability in harsh conditions such as humidity and dust. This set of rigorous testing procedures ensures reliable quality assurance for every drive axle delivered to the customer.
Special services for customers worldwide
To ensure that customers at home and abroad feel confident using our grader rear swing axle, we have established a multilingual and responsive global service team that provides full-cycle support, from pre-sales selection to after-sales service. Our foreign trade team and technical engineers can answer customers' technical questions in real time through online meetings, remote video recording, and other means, quickly diagnose faults, and propose solutions, eliminating language and distance barriers to communication. We also provide online operation manuals, repair manuals, and parts catalogs in multiple languages so that customers' local technical teams can quickly check them and get started with their work at any time. Furthermore, based on customer needs, we can arrange on-site visits by senior engineers or online operation and maintenance training to help customers improve their independent maintenance capabilities and truly realize the global "product + service" guarantee.









